
Lieu & Année: Tirrases, Costa Rica.
Typologie : Aménagement Urbain
Phase du projet: FAIS, ESQ, PC, DCE et DM.
Typologie : Aménagement Urbain
Phase du projet: FAIS, ESQ, PC, DCE et DM.
YUSO PROYECTOS
https://yusoproyectos.com/

Le projet repose sur un système de quatre bâtiments publics, interconnectés par des boulevards, escaliers et rues. Cette intervention vise à réorganiser le territoire en transformant les terrains vagues, rues et gradins actuellement précaires. En favorisant l’appropriation de l’espace public, elle contribue à renforcer la sécurité du quartier, améliorer sa connectivité urbaine, dynamiser l’économie locale et offrir un cadre de vie plus digne aux habitants.



La Place du Marché, plus grand espace du quartier, relie Miravalles à la ville en intégrant un terminal de bus et une place de marché, favorisant l’interaction des habitants. Un grand toit modulable s’adapte à la topographie, créant un espace ouvert et accessible à tous.
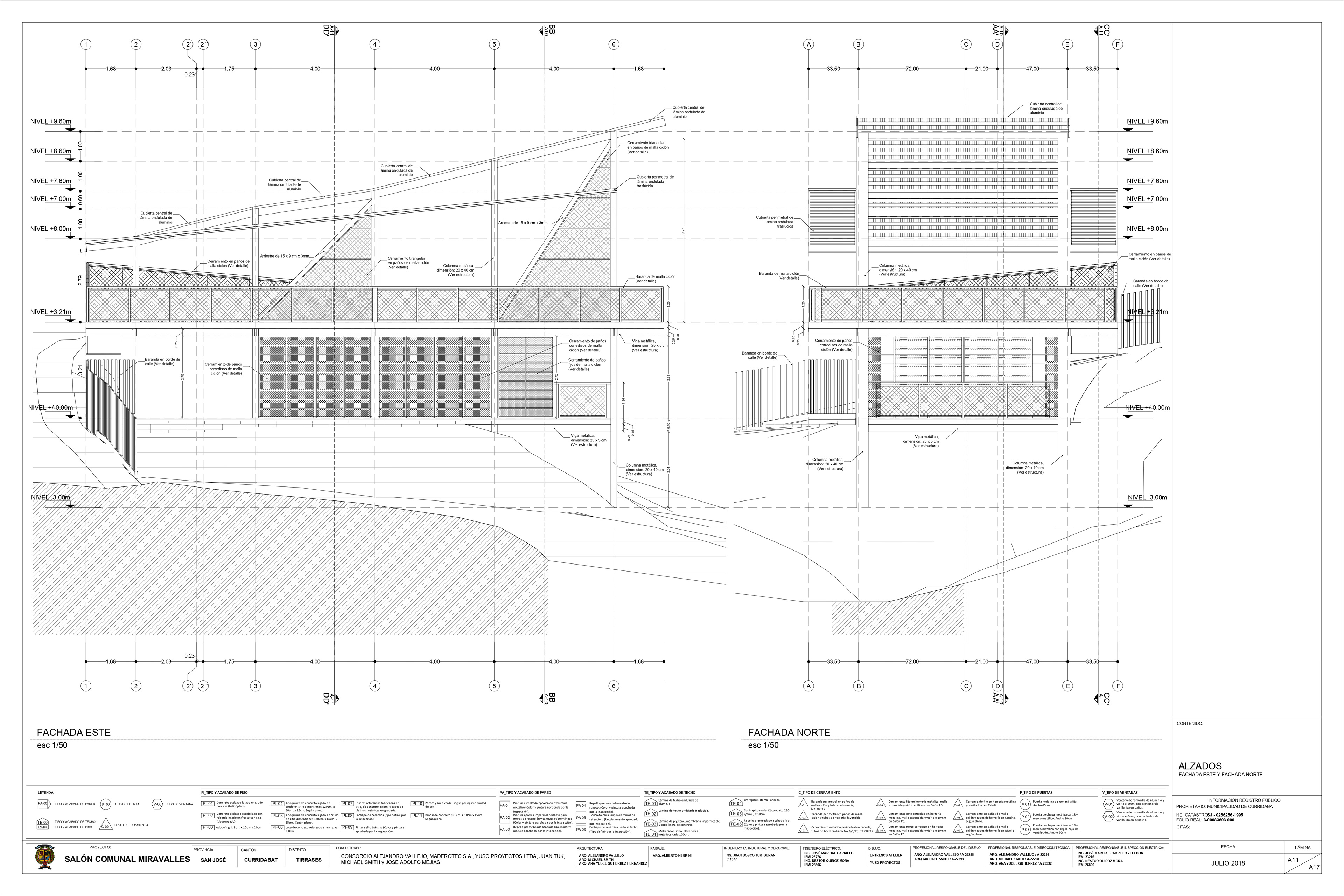
La Maison Communautaire, située en hauteur, offre une vue panoramique et répond au manque d’espaces de jeux pour les enfants. Son niveau supérieur, ouvert sur la rue, est un espace récréatif et de contemplation, tandis que le niveau inférieur, plus intime, accueille des activités collectives.
Un parc vertical, pensé pour maximiser l’espace disponible, connecte les différentes zones du quartier grâce à un réseau de rampes et d’escaliers.
Enfin, un espace de liaison entre les quartiers haut et bas inclut une plateforme publique avec mobilier urbain, un centre de collecte des déchets et un gymnase avec stockage d’équipements de sécurité, renforçant ainsi la résilience et la cohésion sociale du quartier.












